Unelma-asumista paraatipaikalla
Torstai 11. huhtikuuta 2024Tyylikkäät rivitalohuoneistot nousevat Tapiolan keskustan puistomaiseen miljööseen. Kohteen myötä Bonavan toteuttama kortteli on kokonaan valmis.

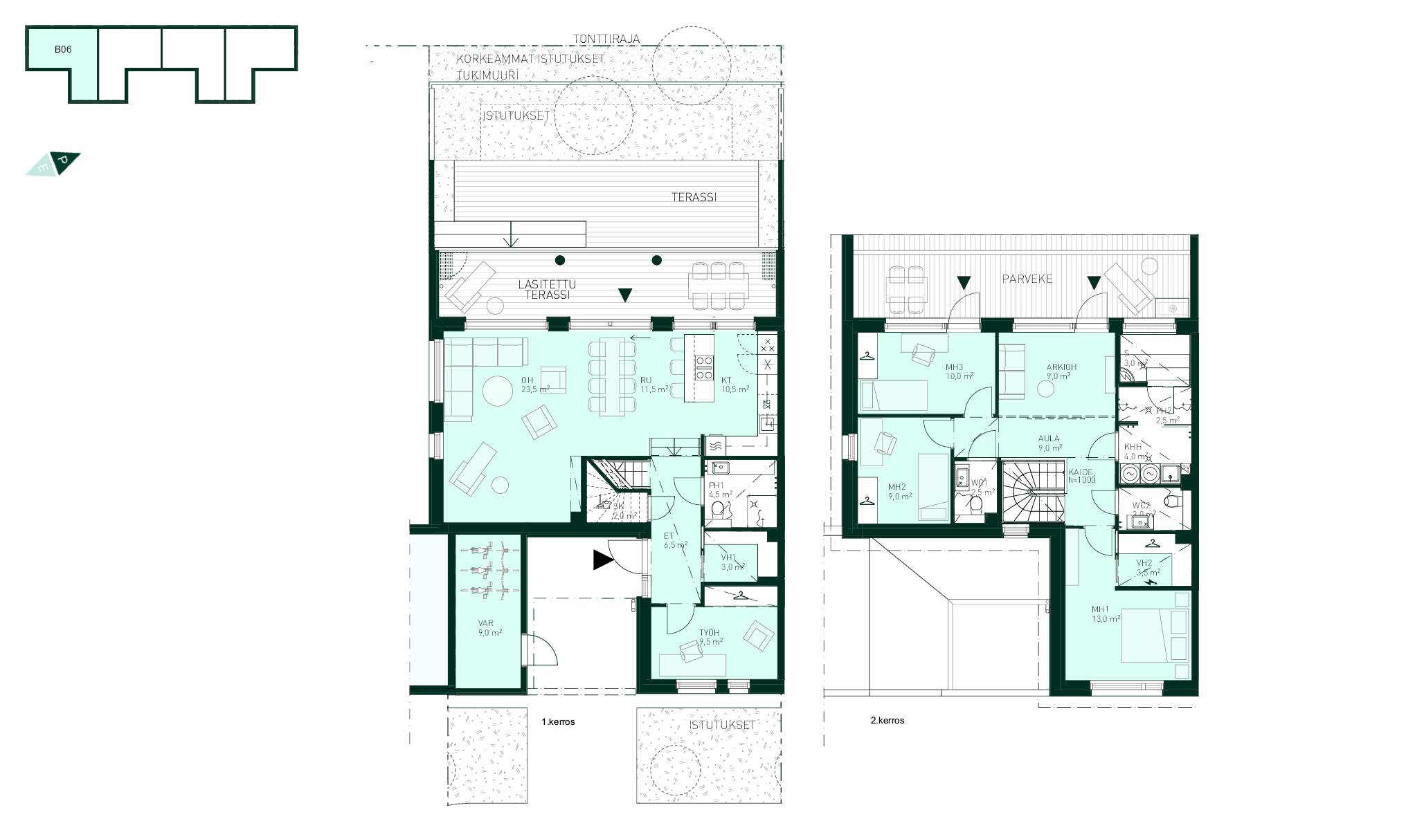
Kaksikerroksinen rivitalohuoneisto

Kartan katsominen edellyttää kolmannen osapuolen palveluiden hyväksymistä.
Tuuliniitty 7, 02100 Espoo
Espoon Tuulikello 3
Nyt jokainen huone tuo mukanaan 10 000 euron säästön, joka vähennetään suoraan asuntosi myyntihinnasta. Löydä oma rakkain paikkasi ja tee kaupat 1.5.−30.6.2026.
Omalle tontille asettuva Asunto Oy Espoon Tuulikello 3 tuo odotettuja uusia rivitaloasuntoja Tapiolan puistojen ja palvelujen äärelle.
146,5-neliöisen kodin alakerrassa avartuu keittiön, ruokailutilan ja olohuoneen yhdistävä suuri oleskelutila, jonka huonekorkeus kohoaa 3,1 metriin. Valtavien ikkunapintojen ansiosta tila kylpee valossa, ja sama ilmava tunnelma jatkuu liukulasiovien takana puiston suuntaan avautuvalla katetulla terassilla sekä omalla pihalla. Eteisen yhteyteen on sijoitettu yksi kodin neljästä makuuhuoneista. Loput kolme makuuhuonetta löytyy kodin yläkerrasta. Yläaulan vieressä on lisäksi tila, joka palvelee esimerkiksi arkiolohuoneena. Päätyhuoneiston kruunaa koko asunnon levyinen parveke, jolle on kaksi sisäänkäyntiä.
Molemmissa kerroksissa on oma pesuhuoneensa, minkä lisäksi yläkerrasta löytyy erillis-wc, kodinhoitohuone sekä ylellinen saunaosasto. Kaksi vaatehuonetta ja runsaat kaapistot sujuvoittavat arkea. Sisäänkäynnin ulkopuolella on lisäksi poikkeuksellisen suuri, 9-neliöinen viileä irtaimistovarasto, johon mahtuvat polkupyörät ja muut harrastusvälineet.
Sisustussuunnittelijamme on valinnut kotiin Kährsin 3-sauvaisen tammiparketin sävyssä Clay. Eteinen on laatoitettu. Keittiössä on Puustellin kashmirin sävyiset kaapistot, kvartsitaso sekä integroidut kodinkoneet. Pyrolyysiuuni ja induktiotaso tekevät ruoanlaitosta miellyttävää. Kylpyhuoneissa on särmikkäät tummat saarnilaatikostot, ylelliset malja-altaat sekä Laattapisteen laatat sävyssä Aavikko. Kodin kaikki vesikalusteet ovat kultamessingin sävyisiä.
Kotisi on varustettu älykotiominaisuuksilla, jolloin voit seurata sähkön- ja vedenkulutustasi mobiilisovelluksella. Mikäli haluat vielä itse laajentaa järjestelmää, voit lisätä valaistuksen ja verhojen säädön sovellukseen. Myös hälytysjärjestelmää on mahdollista hallita sovelluksen avulla.
Lämmitysjärjestelmänä toimii vesikiertoinen lattialämmitys, joka toteutetaan ympäristöystävällisellä maalämmöllä. Kesäisin viilennystä tarjoaa miellyttävä maakylmä. Viilennystä voidaan tehostaa ilmalämpöpumpuilla, joille on tilavaraukset niin ylä- kuin alakerrassa. Myös lämmitysjärjestelmä on yhdistetty etäohjattavaan mobiilisovellukseen, joten voit säätää asuntosi lämpötilaa missä ja milloin tahansa. Tuulikello 3:n energialuokka on A, ja kodit rakennetaan energiaa ja luonnonvaroja säästäen.
Osakkeina myytävät autopaikat sijoittuvat korttelin yhteiseen pihakannen alle rakennettuun halliin, jonne on kulkuyhteys naapuriyhtiö Tuulikello 2:n porrashuoneen kautta. Jokaisella autopaikalla on mahdollisuus auton lämmittämiseen ja sähköauton lataamiseen.
Kauppahinta maksetaan erissä rakentamisen etenemisen mukaan. Tarkemmat tiedot löytyvät kohteen myyntihintaluettelosta, jonka saat asuntomyynnistämme. Kohde sijaitsee omalla tontilla, jolloin asunnon velaton myyntihinta sisältää tontin osuuden.


Tuulikello 3 on energiatehokas uudiskohde, jonka energialuokka on A.
Energiatodistus


Taloyhtiölainasta on vastuussa jokainen osakas. Jos lainaa koskevia pääomavastikkeita ei saada joidenkin asuntojen osalta muutoin perittyä, maksuvelvollisuus voi langeta viime kädessä muille osakkaille.
Laina-aika on n. 20 vuotta yhtiön valmistumisesta lukien. Yhtiölainan myöntäjä on POP Pankki Suomen Osuuspankki. Hinnaston mukaiset pääomavastikearviot on laskettu noteerauspäivän 8.8.2025 mukaisesti, Euribor 12 kk 2,121 % + 1,12 % = 3,241 % (maksettava korko on aina vähintään marginaalin suuruinen). Pääomavastikkeessa ei ole otettu huomioon em. noteerauspäivän jälkeen tapahtuneita koron muutoksia. Perittävä vastike voi siten olla ilmoitettua suurempi tai pienempi viitekoron arvosta riippuen. Pankilla on yksipuolinen oikeus lainan marginaalin tarkastukseen 5 vuoden välein velkakirjan allekirjoittamisesta lukien. Pankilla on lisäksi oikeus velkakirjan yleisten ehtojen mukaan korottaa korkomarginaalia tai periä velkaan liittyviä kustannuksia erillisenä korvauksena (ks. Taloussuunnitelman liite Velan yleiset ehdot).
Pääomavastiketta peritään, jos et maksa pois asuntokohtaista osuutta taloyhtiölainasta.
Osakkeina myytävät autopaikat sijaitsevat korttelin yhteisessä autohallissa pihakannen ja osittain korttelin kerrostalojen alla. Jokaisella autopaikalla on mahdollisuus auton lämmittämiseen ja sähköauton lataamiseen
Tuulikello 3:n myytävät autopaikatJoko ajat hybridi- tai sähköautolla tai harkitset sellaisen hankkimista? Ladattavan auton käyttö on Bonava-kodin asukkaille helppoa, kun uudiskohteidemme jokaisella autopaikalla on valmius sähköauton latauslaitteen käyttöönottoon.
Sähköauton latausTuulikello 3:n autopaikoilla on valmius sekä auton lämmittämiseen että sähköauton lataamiseen. Asukas voi valita omalle autopaikalleen sähköauton pysäköintilatauksen, nopeamman Type 2 -latauksen tai pelkän perinteisen lämmityksen. Tarpeiden muuttuessa palvelua on helppo vaihtaa. Sekä lämmitys- että sähköautonlatauslaite tilataan ulkopuoliselta palveluntarjoajalta asukkaan erillishankintana.
Tuulikellosta on helppo piipahtaa asioille, sillä kauppakeskus Ainoaan, metroasemalle, Espoon kulttuurikeskukseen ja Tapiolan terveysasemalle on alle kilometrin kävelymatka. Oman pikantin lisänsä arkeen tuovat Tapiolan viehättävät ravintolat ja kahvilat, kuten Bistro O Mat sekä rantakahvila Café Otsolahti upeine terasseineen.
Tapiolan naapurusto sopii erinomaisesti myös lapsiperheille, sillä alueelta löytyy lukuisia viihtyisiä päiväkoteja ja hyvämaineisia kouluja. Tuulikellon lähellä sijaitsevat muun muassa Vindängenin koulu, Tapiolan koulu, Tapiolan lukio sekä Omnian toimipiste. Aalto-yliopiston kampukselle pääsee parissa kymmenessä minuutissa metrolla, bussilla tai pyöräillen.
Tapiolassa on helppo harrastaa lähes lajia kuin lajia. Tapiolan urheilupuisto ja Metro Areena sijaitsevat noin kahden kilometrin päässä, ja Tapiola Golfin maineikkaalle kentälle on matkaa reilun neljän kilometrin verran. Lisää monipuolista tekemistä tarjoaa vehreä lähiluonto rantoineen, niittyineen, puistoineen ja viihtyisine kävelyteineen ja pyöräilyreitteineen.
Tuulikellossa asutaan loistopaikalla noin kymmenen minuutin kävelymatkan päässä Tapiolan metroasemasta. Myös bussiyhteydet sekä kevyen liikenteen väylät ovat ensiluokkaiset. Autolla kotoa on helppo hurauttaa länsiväylälle tai Kehä I:lle, ja kotona auton saa turvallisesti pihakannen alaiseen pysäköintihalliin.
Tyylikkäät rivitalohuoneistot nousevat Tapiolan keskustan puistomaiseen miljööseen. Kohteen myötä Bonavan toteuttama kortteli on kokonaan valmis.
Uusia rivitaloasuntoja Tapiolaan Jos haluaa asua uudessa rivitalokodissa tai yksitasoisessa pienkerrostalokodissa Tapiolassa, ei tällaisia ole juurikaan ollut tarjolla. Nyt Bonava Suomi toteuttaa Tuulikellon kortteliin kolmen uudisrakennuksen muodostaman yhtiön, joka tarjoaa 15 puistoon avautuvaa kotia.
Tapiola on yksi Espoon tunnetuimmista ja arvostetuimmista asuinalueista. Se on historiallinen puutarhakaupunki, jossa vehreys, arkkitehtuuri ja monipuoliset palvelut muodostavat ainutlaatuisen kokonaisuuden. Tapiola tarjoaa rauhallista asumista luonnon äärellä, mutta samalla erinomaiset liikenneyhteydet ja kattavat palvelut aivan lähellä.
Kauppakeskus Ainoa tarjoaa yli 100 liikettä, ravintolaa ja kahvilaa. Lähellä ovat myös kirjasto, neuvola, terveysasema sekä monipuoliset ravintolat ja kulttuuripalvelut, kuten Espoon kulttuurikeskus ja WeeGee-talon museot.
Alueella on useita kouluja ja päiväkoteja, kuten Vindängenin koulu, Tapiolan koulu ja Tapiolan lukiot. Aalto-yliopiston kampukselle pääsee helposti metrolla, bussilla tai pyörällä.
Tapiolasta pääsee helposti liikkumaan joka suuntaan. Länsimetro vie Helsingin keskustaan 13 minuutissa ja Matinkylään viidessä minuutissa. Lähimmät asemat ovat Urheilupuisto ja Tapiola. Lisäksi alueella on uusi bussiterminaali, hyvät väylät autoiluun ja kattava pyöräreitistö.
Tapiola tunnetaan puutarhakaupunkina, jossa on runsaasti puistoja, niittyjä ja kävelyreittejä. Lähellä ovat Tapiolan urheilupuisto, Espoo Metro Areena sekä Tapiola Golfin kenttä. Myös meri ja Espoon rantaraitti ovat lähellä.
Espoon Tuulikello 3 sijaitsee Tapiolan Tuuliniityssä, osoitteessa Tuuliniitty 9, puiston laidalla rauhallisessa ja suojaisassa ympäristössä. Kauppakeskus Ainoa, metroasemat, kulttuuripalvelut ja ravintolat ovat kävelyetäisyydellä.
Espoon Tuulikello 3 on omalle tontille rakennettava asuinkokonaisuus, joka koostuu kahdesta rivitalosta ja yhdestä pienkerrostalosta. Kohteessa on yhteensä 15 asuntoa.
Asunto Oy Espoon Tuulikello 3 sijaitsee omalla tontilla.
Kyllä. Espoon Tuulikello 3:n osakkeina myytävät autopaikat sijaitsevat korttelin yhteisessä autohallissa, joka on rakennettu pihakannen ja osittain korttelin kerrostalojen alle.
Kyllä. Autopaikat on varustettu sähköauton hidaslatausmahdollisuudella (Äly-Schuko 3,7 kW). Lisäksi osakkaalla on mahdollisuus asennuttaa muutostyönä tehokkaampi, 11 kW latauslaite omien tarpeidensa mukaan.
Tuulikello 3:ssa on vehreä ja suojaisa yhteinen piha, joka tarjoaa tilaa oleskeluun, lasten leikkeihin ja yhdessäoloon. Piha rajautuu puistoon, ja Tuuliniityn leikkipaikalle pääsee turvallisesti ilman autotien ylitystä.
Tuulikello 3:ssa on 3–6 huoneen koteja, 85–146,5 m². Rivitaloasunnot ovat kaksikerroksisia ja pienkerrostalon kodit yksitasoisia. Asunnoissa on avarat oleskelutilat, suuret ikkunat ja huolella suunnitellut pohjaratkaisut, jotka tukevat sujuvaa arkea.
Kyllä. Useimmissa kodeissa on oma huoneistopiha, terassi tai parveke. Rivitaloasunnoissa alakerran oleskelutilat avautuvat omalle pihalle, ja yläkerrassa on koko asunnon levyinen parveke. Pienkerrostalon kodeissa on lasitettu parveke tai terassi.
Vapaissa kodeissa sisustussuunnittelija on valinnut yhtenäiset ja ajattomat materiaalikokonaisuudet. Mahdollisista muutostöistä ja lisävalinnoista kerrotaan tarkemmin myynnin yhteydessä.
Asunnoissa on koneellinen ilmanvaihto lämmöntalteenotolla. Järjestelmä varmistaa hyvän sisäilman laadun ja tukee energiatehokasta asumista ympäri vuoden.
Kyllä. Kesäaikaista asumismukavuutta parantaa miellyttävä maakylmä. Viilennystä on mahdollista tehostaa ilmalämpöpumpuilla, joille on tehty asuntoihin tilavaraukset. Mahdolliset ilmalämpöpumput toteutetaan osakkeenomistajan vastuulla.
Kodit on varustettu älykotiominaisuuksilla, joiden avulla voit seurata muun muassa vedenkulutusta mobiilisovelluksella. Järjestelmää on mahdollista laajentaa omien tarpeiden mukaan esimerkiksi valaistuksen ja verhojen ohjaukseen. Myös hälytysjärjestelmää voidaan hallita sovelluksen kautta, mikä lisää asumisen turvallisuutta ja helppoutta.
Asunnoissa on vesikiertoinen lattialämmitys, joka toteutetaan maalämmöllä. Lattialämmitys tarjoaa tasaisen ja miellyttävän lämmön ilman näkyviä pattereita. Lämmitysjärjestelmä on yhdistetty etäohjattavaan mobiilisovellukseen, jonka avulla voit säätää asuntosi lämpötilaa missä ja milloin tahansa.