Kruunuvuorenrannan merellisiin maisemiin omalle tontille asettuva Asunto Oy Helsingin Renata on suunniteltu mukavaa ja huoletonta elämää silmällä pitäen. Täällä nautit eväsretkistä rantakallioilla ja hellepäivien vesileikeistä uimarannalla.
Hyödynnä ennakkovaraajan etu
Nyt pääset Renatan tasokkaisiin Bonava-koteihin huolettomin mielin. Tarjoamme 35 ensimmäiselle varaajalle poikkeuksellisen joustavat maksuehdot. Maksat kaupanteon yhteydessä myyntihinnasta vain 20 % ja loput vasta kun uusi kotisi valmistuu.
Oleskelutilat
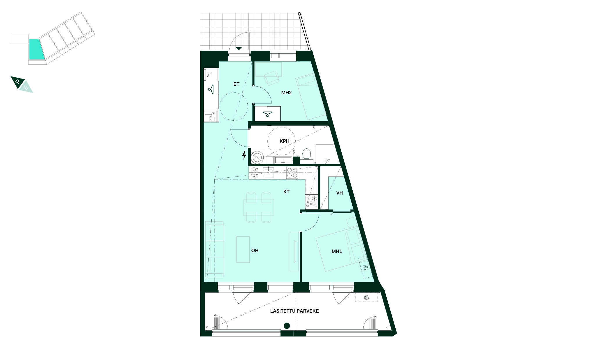
Onko toiveissasi koti, jossa arkikin maistuu lomalta? Tämä toisen kerroksen 64,5-neliöinen läpitalonkolmio on juuri sellainen. Oma sisäänkäynti korttelipihan puolella helpottaa kulkua, ja erilleen sijoitetut makuuhuoneet takaavat rauhaisat yöunet. Avara keittotilan ja olohuoneen muodostama oleskelutila kokoaa perheen ja ystävät yhteen, ja herkulliset tarjottavat on helppo loihtia Puustellin kalustein ja Electroluxin kodinkonein varustetussa kulmakeittiössä. Valtavalle lasitetulle eteläparvekkeelle voit sisustaa houkuttelevan kesäkeitaan tai perustaa pienen yrttipuutarhan.
Eteiseen ja toiseen makuuhuoneista on sijoitettu Puustellin kätevät liukuovelliset säilytyskalusteet ja toisen makuuhuoneen yhteydessä on mukavan kokoinen vaatehuone. Vesikiertoinen lattialämmitys viimeistelee asumismukavuuden ja helpottaa sisustamista, kun ikkunaseinustoilla ei ole tilaa vieviä pattereita. Asunnossa on myös varaus jälkiasenteiselle ilmalämpöpumpulle.
Kylpyhuone
Viihtyisän asumisen kruunaa tyylikäs kylpyhuone, jossa on seinä-wc, allaslaatikosto, peili led-valaisimella, korkea pyykkikaappi, mukavuuslattialämmitys ja tilavaraus pesutornille. Huolella valitut värit ja materiaalit sekä kattoon upotettu led-valaistus loihtivat tilaan harmonisen ilmeen.
Sisustusvalinnat
Kun olet mukana jo rakentamisen alkuvaiheessa, pääset valitsemaan uuteen kotiisi sinulle mieleisimmät värit ja materiaalit. Sisustussuunnittelijamme ovat laatineet avuksesi kolme upeaa keittiötyyliä sekä kylpyhuoneen tyylikokonaisuuden, jotka tekevät uuden kodin sisustusvalinnoista ihanan inspiroivaa ja huolettoman helppoa. Halutessasi voit myös valita useista lisävalintaisista tyylivaihtoehdoista mieleisesi tai yhdistellä eri tyyleistä juuri omaa makuasi vastaavan kokonaisuuden.
Yhteistilat ja korttelipiha
Asukkaiden yhteisessä käytössä on talosauna, kerhohuone, pesutupa ja kuivaushuone, sekä varastotiloja irtaimistolle, lastenvaunuille ja ulkoiluvälineille. Polkupyörää on helppo säilyttää oman kotioven läheisyydessä ja sillä voi hurauttaa lähikauppaan tai meren rantaan hetkessä. Pyöräilevien asukkaiden iloksi talossa on lisäksi pyörän pesu- ja huoltopiste. Kumpuilevan korttelipihan keskellä mutkittelee vehreä polku, jonka varrelta löytyy viihtyisiä sopukoita ajanviettoon sekä toimintoja kaiken ikäisille asukkaille. Pihapiiriin on luvassa alueelle tunnusomaista valotaidetta, ja Kruunuvuorenselän aaltojen takana siintävän Helsingin kantakaupungin henki on aistittavissa myös omassa kotikorttelissa.
Autopaikat
Osakkeina myytävät autopaikat sijaitsevat pihakannen alla, jonne kulku tapahtuu vaivattomasti hissillä porrashuoneista. Jokaisella autopaikalla on sähköauton latausvalmius.
Kestävää kehitystä kodikkaasti
Renata on A-energialuokan kotitalo, jonka viherkatot tarjoavat otollisen elinympäristön monille kasvi- ja hyönteislajeille. Kodit lämmitetään ympäristöystävällisellä maalämmöllä ja katolle sijoitetaan kiinteistösähköä tuottavia aurinkopaneeleja.