Asunto Oy Helsingin Renata kutsuu viihtymään merelliseen Kruunuvuorenrantaan, vartin ratikkamatkan päähän keskustan palveluista. Naapuruston sijainti tarjoaa poikkeuksellisen hyvän mahdollisuuden nauttia samanaikaisesti ympäröivästä luonnosta ja pääkaupungin urbaanista sykkeestä.
Hyödynnä ennakkovaraajan etu
Nyt pääset Renatan tasokkaisiin Bonava-koteihin huolettomin mielin. Tarjoamme 35 ensimmäiselle varaajalle poikkeuksellisen joustavat maksuehdot. Maksat kaupanteon yhteydessä myyntihinnasta vain 20 % ja loput vasta kun uusi kotisi valmistuu.
Oleskelutilat
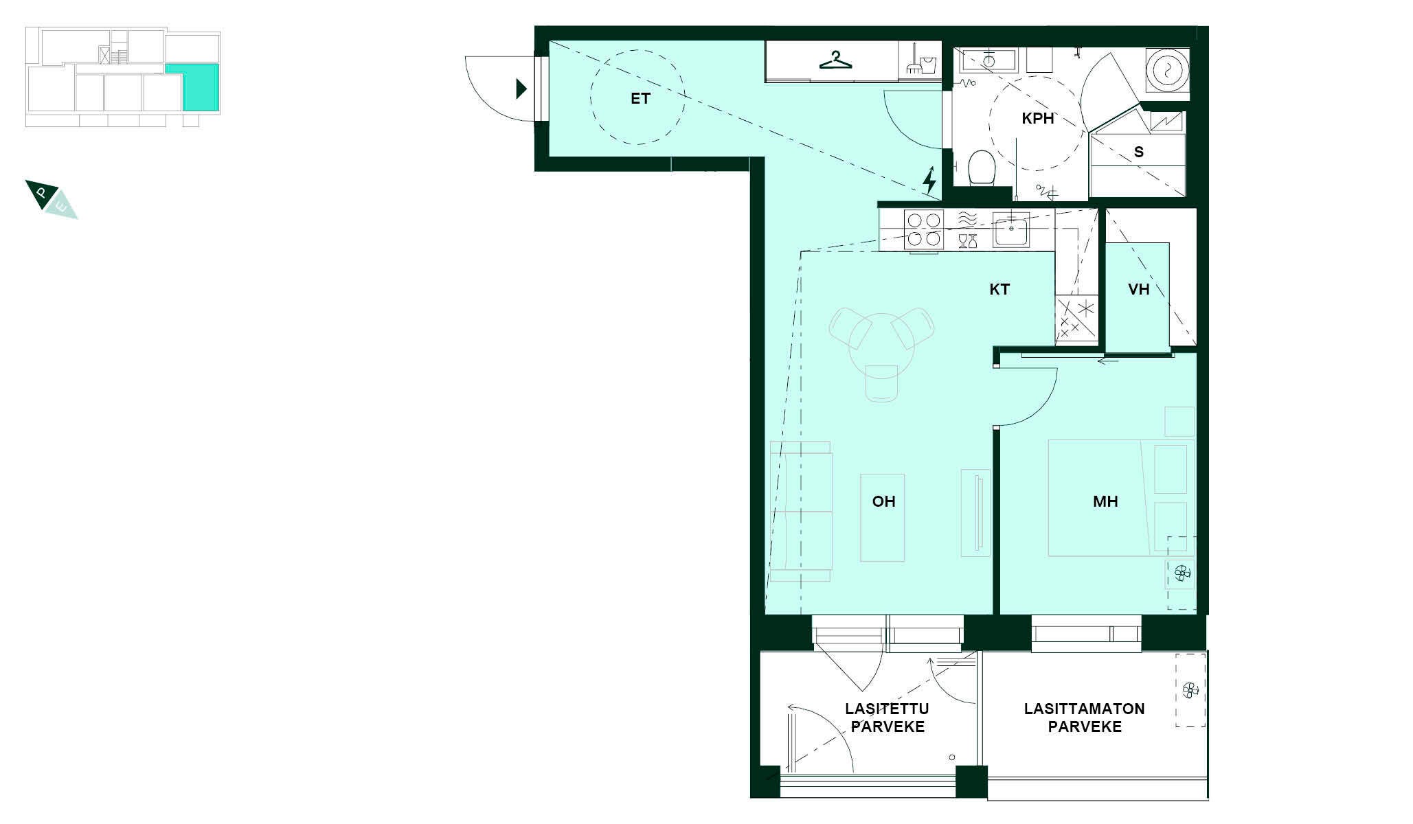
Toisessa kerroksessa sijaitsevan 51,5-neliöisen kaksion keskiössä on hyvin varustettu keittotila, josta oleskelutilat jatkuvat selkeälinjaisen olohuoneen kautta koko asunnon levyiselle, osittain lasitetulle parvekkeelle. Keittotilassa on Puustellin kalusteet ja Electroluxin kodinkoneet.
Makuuhuoneen yhteydessä oleva vaatehuone sekä eteisen liukuovikaapisto tarjoavat reilusti säilytystilaa. Vesikiertoinen lattialämmitys viimeistelee asumismukavuuden ja helpottaa kalustamista, kun ikkunaseinustoilla ei ole tilaa vieviä pattereita. Asunnossa on varaus jälkiasenteiselle ilmalämpöpumpulle.
Kylpyhuone ja sauna
Viihtyisän asumisen kruunaavat tilava ja tyylikäs kylpyhuone sekä upea sauna. Kylpyhuoneessa on seinä-wc, allaslaatikosto, peili led-valaisimella, korkea pyykkikaappi, mukavuuslattialämmitys ja tilavaraus pesutornille. Huolella valitut värit ja materiaalit sekä kattoon upotettu led-valaistus loihtivat tilaan harmonisen ilmeen. Saunan lauteet ovat tervaleppää, ovi ja seinä kirkasta lasia.
Sisustusvalinnat
Kun olet mukana jo rakentamisen alkuvaiheessa, pääset valitsemaan uuteen kotiisi sinulle mieleisimmät värit ja materiaalit. Sisustussuunnittelijamme ovat laatineet avuksesi kolme upeaa keittiötyyliä sekä kylpyhuoneen tyylikokonaisuuden, jotka tekevät uuden kodin sisustusvalinnoista ihanan inspiroivaa ja huolettoman helppoa. Halutessasi voit myös valita useista lisävalintaisista tyylivaihtoehdoista mieleisesi tai yhdistellä eri tyyleistä juuri omaa makuasi vastaavan kokonaisuuden.
Yhteistilat ja korttelipiha
Asukkaiden yhteisessä käytössä on talosauna, kerhohuone, pesutupa ja kuivaushuone, sekä varastotiloja irtaimistolle, lastenvaunuille ja ulkoiluvälineille. Pyöräilevien asukkaiden iloksi talossa on lisäksi pyörän pesu- ja huoltopiste. Kumpuilevan korttelipihan keskellä mutkittelee vehreä polku, jonka varrelta löytyy viihtyisiä sopukoita ajanviettoon sekä toimintoja kaiken ikäisille asukkaille. Pihapiiriin on luvassa alueelle tunnusomaista valotaidetta, ja Kruunuvuorenselän aaltojen takana siintävän Helsingin kantakaupungin henki on aistittavissa myös omassa kotikorttelissa.
Autopaikat
Osakkeina myytävät autopaikat sijaitsevat pihakannen alla, jonne kulku tapahtuu vaivattomasti hissillä porrashuoneista. Jokaisella autopaikalla on sähköauton latausvalmius.
Kestävää kehitystä kodikkaasti
Renata on A-energialuokan kotitalo, jonka viherkatot tarjoavat otollisen elinympäristön monille kasvi- ja hyönteislajeille. Kodit lämmitetään ympäristöystävällisellä maalämmöllä ja katolle sijoitetaan kiinteistösähköä tuottavia aurinkopaneeleja.