Asunto Oy Helsingin Renatan sijainti rannan tuntumassa on mitä mainioin tarjoten useista asunnoista upeita näköaloja. Tämän 55,5-neliöisen kulmahuoneiston parvekkeelta voit ihailla kantakaupungin suuntaan avautuvia hurmaavia merimaisemia.
Hyödynnä ennakkovaraajan etu
Nyt pääset Renatan tasokkaisiin Bonava-koteihin huolettomin mielin. Tarjoamme 35 ensimmäiselle varaajalle poikkeuksellisen joustavat maksuehdot. Maksat kaupanteon yhteydessä myyntihinnasta vain 20 % ja loput vasta kun uusi kotisi valmistuu.
Oleskelutilat
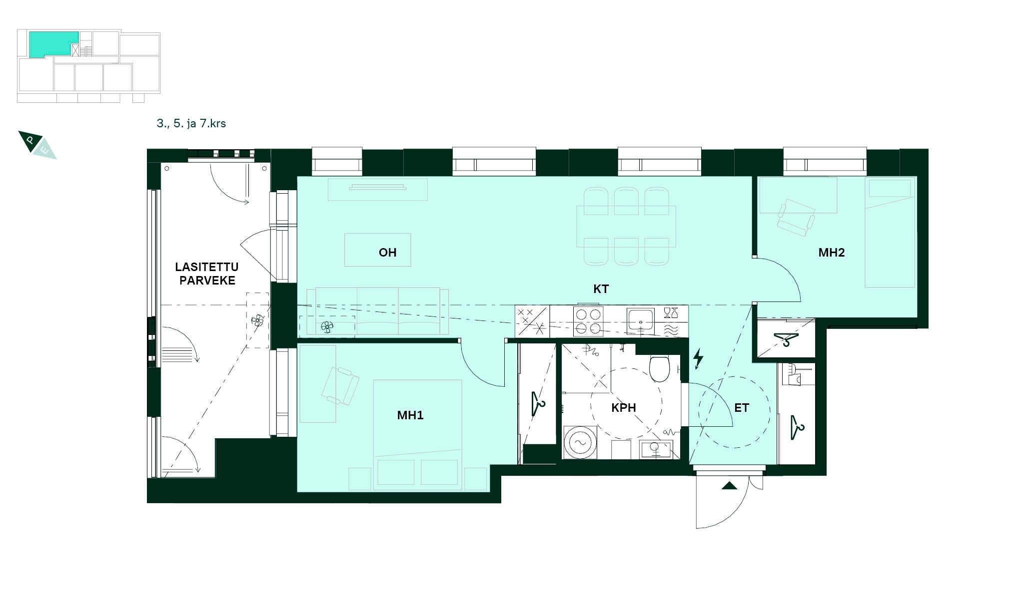
Neljännessä kerroksessa sijaitseva 55,5-neliöinen kolmio ihastuttaa toimivalla tilajaollaan ja aistikkaalla tunnelmallaan. Keittotila ja olohuone muodostavat viihtyisän oleskelutilan, joka saa runsaasti luonnonvaloa korttelipihan suuntaan avautuvasta ikkunarivistä sekä koko huoneiston levyiseltä merimaisemia tarjoilevalta luoteisparvekkeelta. Keittotila on varustettu Puustellin kalusteilla ja Electroluxin kodinkoneilla.
Erilleen sijoitetut makuuhuoneet tuovat omaa rauhaa ja yksityisyyttä. Eteisessä ja makuuhuoneissa on Puustellin kätevät liukuovelliset säilytyskalusteet. Vesikiertoinen lattialämmitys viimeistelee asumismukavuuden ja helpottaa sisustamista, kun ikkunaseinustoilla ei ole tilaa vieviä pattereita. Asunnossa on varaus jälkiasenteiselle ilmalämpöpumpulle.
Kylpyhuone
Viihtyisän asumisen kruunaa tyylikäs kylpyhuone, jossa on seinä-wc, allaslaatikosto, peili led-valaisimella, korkea pyykkikaappi, mukavuuslattialämmitys ja tilavaraus pesutornille. Huolella valitut värit ja materiaalit sekä kattoon upotettu led-valaistus loihtivat tilaan harmonisen ilmeen.
Sisustusvalinnat
Kun olet mukana jo rakentamisen alkuvaiheessa, pääset valitsemaan uuteen kotiisi sinulle mieleisimmät värit ja materiaalit. Sisustussuunnittelijamme ovat laatineet avuksesi kolme upeaa keittiötyyliä sekä kylpyhuoneen tyylikokonaisuuden, jotka tekevät uuden kodin sisustusvalinnoista ihanan inspiroivaa ja huolettoman helppoa. Halutessasi voit myös valita useista lisävalintaisista tyylivaihtoehdoista mieleisesi tai yhdistellä eri tyyleistä juuri omaa makuasi vastaavan kokonaisuuden.
Yhteistilat ja korttelipiha
Asukkaiden yhteisessä käytössä on talosauna, kerhohuone, pesutupa ja kuivaushuone, sekä varastotiloja irtaimistolle, lastenvaunuille ja ulkoiluvälineille. Pyöräilevien asukkaiden iloksi talossa on lisäksi pyörän pesu- ja huoltopiste. Kumpuilevan korttelipihan keskellä mutkittelee vehreä polku, jonka varrelta löytyy viihtyisiä sopukoita ajanviettoon sekä toimintoja kaiken ikäisille asukkaille. Pihapiiriin on luvassa alueelle tunnusomaista valotaidetta, ja Kruunuvuorenselän aaltojen takana siintävän Helsingin kantakaupungin henki on aistittavissa myös omassa kotikorttelissa.
Autopaikat
Osakkeina myytävät autopaikat sijaitsevat pihakannen alla, jonne kulku tapahtuu vaivattomasti hissillä porrashuoneista. Jokaisella autopaikalla on sähköauton latausvalmius.
Kestävää kehitystä kodikkaasti
Renata on A-energialuokan kotitalo, jonka viherkatot tarjoavat otollisen elinympäristön monille kasvi- ja hyönteislajeille. Kodit lämmitetään ympäristöystävällisellä maalämmöllä ja katolle sijoitetaan kiinteistösähköä tuottavia aurinkopaneeleja.